[over the space] 6회. 종로5가 프로젝트 > over the space

본문 바로가기

작성일 2018-02-12 15:39:58
조회: 5,528  
제목 [over the space] 6회. 종로5가 프로젝트
 
첨부파일
 

본문



[over the space] 6회. 종로5가 프로젝트




호암미술관의 건축설계가 끝나고 맡게 된 프로젝트는
종로5가 전철역 인근의 작은 근린생활시설이다.
 
이전에 1년여간 다른 스탭이 작업해오던 설계안이
여러가지 사정으로 인해 완전히 바뀌어야 했는데,
아직은 규모가 작은 프로젝트라도 김씨가 혼자 감당하기에는
다소 벅차다는 생각이었지만 주어진 프로젝트에 최선을 다 해 본다.
 
김씨가 작업한 1997년의 2차 계획안은 이전의 계획안보다
땅의 흔적을 더 적극적으로 받아들인 안이었던 것으로 기억한다.
기존의 슬레이트 지붕으로 된 2층짜리 통닭집의 형상을
단면계획에서 유지하고자 심혈을 기울인 것.
2층 상부의 곡선형 지붕 형태로 남아 있다.
 
종로5가 프로젝트는 그 당시로 40대 초반의 건축주께서 대대로 이어오던
통닭집 건물을 다시 짓기 위한 프로젝트였는데,
1차 계획안을 마무리하고 공사비를 산정해보니
예산을 과도하게 초과하여 도저히 지을 수 없는 상황이 된다.
 
다시 예산에 맞추기 위해 완전히 다른 계획안을 만들게 되는데,
이전의 계획안을 1년여간 작업한 담당자는 그 긴 시간, 

한 프로젝트만 진행하는 것에 혼란스러운 나날들을 보내던 중 
회복할 수 없는 실수 후에 자취를 감춘다.
이전의 회사에서는 1주일에 한 건씩 허가를 냈다며 자랑스럽게 이야기하던 이.

 
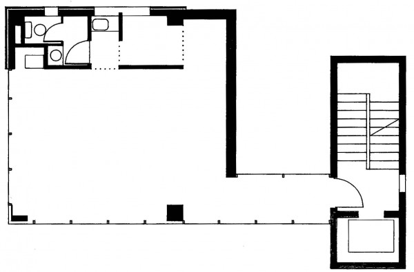
47평 정도의 대지에 지하1층, 지상5층의 150여평 정도의 건물.
1,2층을 통닭집으로 사용하고 나머지 층을 임대할 예정이었다.
 
당시에 작업할 때에는 10년, 20년 후에 이와 비슷한 규모의 프로젝트를
김씨가 작업할 수 있을 것으로는 생각지도 못하였는데,
동숭동의 카페 모 베터 블루스 (대지 34평) (2009)
화곡동의 다세대주택 (대지 45평) (2015)
신당동의 근린생활시설 및 다가구주택(대지 52평) (2017)등의 프로젝트는
이 때의 경험이 없었다면 중요하게 여기게 되었을까.
 
작은 땅의 소중함,
긴 호흡의 설계 작업에 대한 적응을 이 때에 체험한 듯하다.
 
이 때 생각하게 된 또 하나의 경험은,
예산을 초과하여 지어지지 못할 설계안은
결국 종이위의 허상일 뿐이라는 것.
아무리 좋은 계획이라도 지어지지 못해 기능을 수행하지 못한다면
그걸로 끝이 아닌가.
 
build-ing

건축물은 언제나 지어진 후의 ing가 의미있는 것이 아닌지. 

모도에서 진행하는 설계 작업의 중요한 관점은
공사중의 변경을 최소화할 수 있도록 최대한 세세하게 설계하고자 한다는 것.
건축가의 욕심으로 공기 연장이나 공사비 상승을 불러오지 않도록
설계 단계에서 예산을 고려하여 최선의 설계안을 만들어내고자 하는 것이다. 
 
김씨가 작업한 2차 계획안도 결국은 지어지지 못하고 이 프로젝트는 마무리된다.
 
이 이후의 기간은 1998년 IMF로 이어지며 기나긴 암흑의 기간이랄 수 있겠다.
 
설계 작업이 주어지지 않으니 현상설계를 연달아 진행하게 된다.
 
성북영화기념관 및 도서관,
제암리 3.1운동 순국유적지 기념관,
의재미술관,
소마미술관 Seoul Olympic Museum of Art (당시의 현상설계 명칭은 서울올림픽기념미술관)
선유도 공원화사업 
 
1999년에 시작된 의재미술관은 건축사에 큰 획을 그은 건축물로 자리하게 되고(2001년 한국건축문화대상 대상)
2001년의 소마미술관은 많은 우여곡절을 겪으며 지어진 후에 조금씩 빛을 발하게 된다.
2003년에 개장한 선유도공원은 도시재생 작업의 최초 사례라 할 수 있겠다.
 
이 이야기는 다음 회에...
 
7회. 의재미술관
8회. 소마미술관
9회. 선유도공원

 
 
2차 계획안 (1997)
 
 
20180207_c1beb7ce5b0a1c7c1b7cec1a7c6ae_text.jpg 
 
 
 
 


site1.JPG 
 
 
 
 
20180207_c1beb7ce5b0a1c7c1b7cec1a7c6ae2_plan.jpg 
 
 
 
 
20180207_c1beb7ce5b0a1c7c1b7cec1a7c6ae1_ele2bsection.jpg 
 
 
 
 
 
 





photo.JPG 






 





 





 





 




1차 계획안 (1996)






 




b8f0c7fc1.JPG 






 





 





 




c0a7c4a1b5b5.JPG 





위치도






 





 





 





 




b1pl.JPG 





지하층평면도






 





 





 





 




1pl.JPG 





1층평면도






 





 





 





 




2pl.JPG 





2층평면도






 





 





 





 




2mpl.JPG 





2층평면도(상부)






 





 





 





 




3pl.JPG 





3층평면도






 





 





 





 




4pl.JPG 





4층평면도






 





 





 





 




6pl.JPG 





5층평면도






 





 





 





 




rpl.JPG 





지붕평면도






 





 





 





 




sec1.JPG 





단면도






 





 





 





 





 
 



over the space
 

1회. 양재287.3
 

2회. 서울건축학교
 

3회. 현상설계
 

4회. 편집디자인
 

5회. 호암미술관 한국정원 '희원'의 건축
 

6회. 종로5가 프로젝트
 

7회. 의재미술관
 

8회. 소마미술관

9회. 선유도공원